$249,900

899 Route 102
Swan Creek, New Brunswick E2v2y3
MLS® Number: NB137254

  • 2
  • 1
  • 780 sqft sq ft

Step into a home where life feels a little simpler. This 1960's bungalow at 899 Route 102 brings back a time when the kitchen was the heart of the home: a place for meals, conversations, and everyday moments that matter. Inside, youll find easy one-level living with two bedrooms and a spacious bathroom, complete with conveniently tucked-away laundry. The large front living room flows into a bright sun porch, soon to be your new favorite spot for morning coffee or curling up with a good book. Cold winter mornings? No problem. The single-car garage means you'll never scrape frost off your windshield again. Outside, the ¼-acre yard backs onto the old railroad trail - perfect for evening strolls or letting the dog run free. Garden lovers will spot the old greenhouse waiting to be revived. It stays if you want it. This is the kind of yard where kids play until the streetlights come on. Location seals the deal. You're 15 minutes from the shops and dining in charming Gagetown Village and under 20 minutes to CFB Gagetown and Oromocto. Swan Creek is the kind of place where neighbors still wave and stop to chat. If youre looking for comfort, charm, and convenience in a friendly rural setting, this home is ready to welcome you. (id:34572)

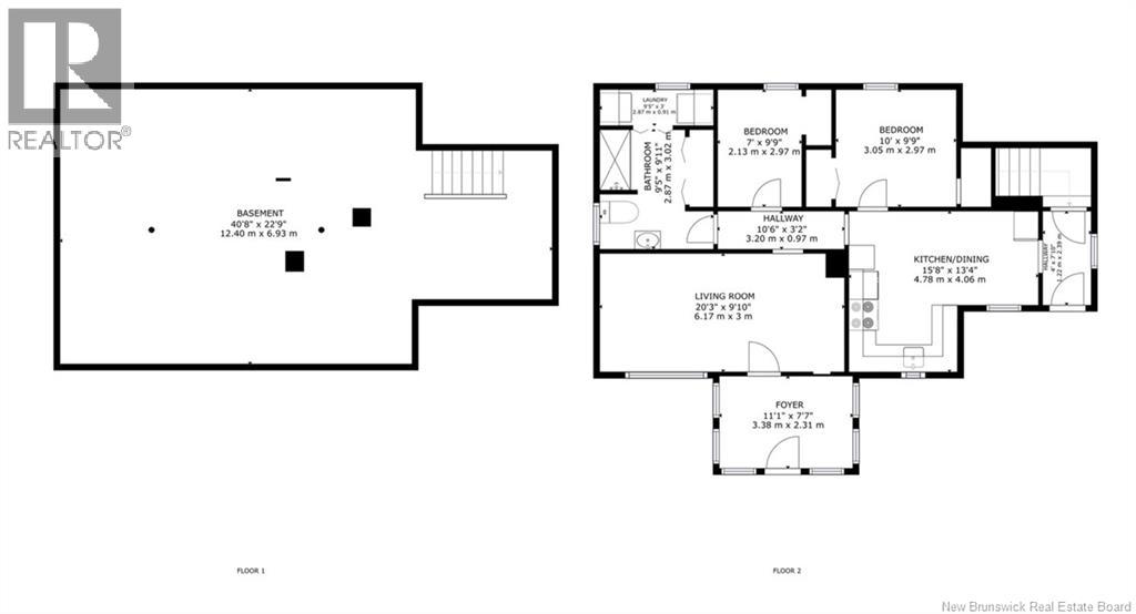
Room Dimensions

Level Type Dimensions
Main Level Bath (# Pieces 1-6) 12'11'' x 9'5''
Main Level Bedroom 9'9'' x 7'
Main Level Bedroom 10' x 9'9''
Main Level Sunroom 11'1'' x 7'7''
Main Level Living Room 20'3'' x 9'10''
Main Level Kitchen/dining Room 15'8'' x 13'4''
Main Level Mud Room 7'10'' x 4'0''


Loading, please wait...

Property Summary

  • Bedrooms 2
  • Bathrooms 1
  • Architectural Style Bungalow
  • Property Type Single Family
  • Square Footage 780 sqft
  • Total Finished Area 780 sqft
  • Built In 1965
  • Exterior Finish Vinyl
  • Heating Oil, Wood Forced air
  • Title N/A
  • Rental Equipment N/A
  • Basement Type Full (Unfinished)
  • Parking Type Garage
  • Features N/A
  • Flooring Laminate, Hardwood
  • Type House

Land Properties

  • Lot Size 1518 m2
  • Access Type Year-round access, Public Road
  • Water Drilled Well, Shared Well, Well
  • Features Landscaped
  • Sewer Septic System

Property Map