$697,500

49 Saint Pierre Drive
Fredericton, New Brunswick E3c0c3
MLS® Number: NB132816

  • 5
  • 4
  • 3060 sqft sq ft

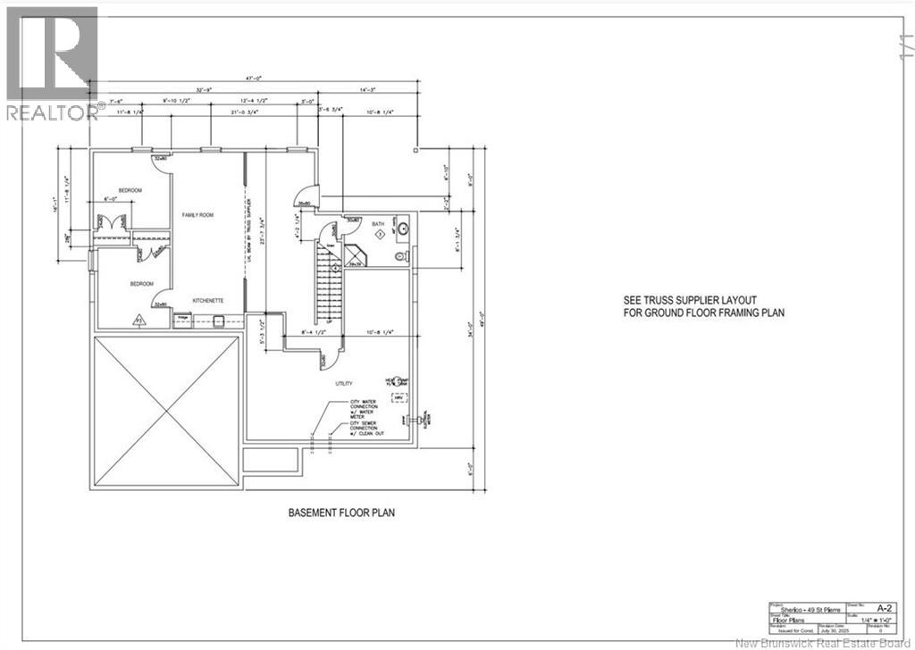
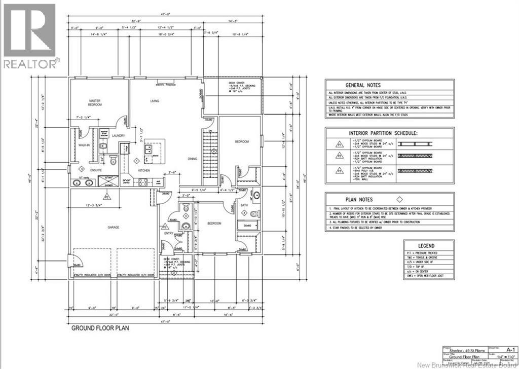
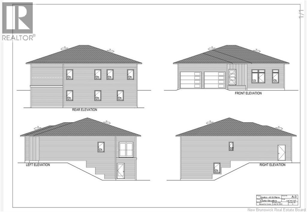
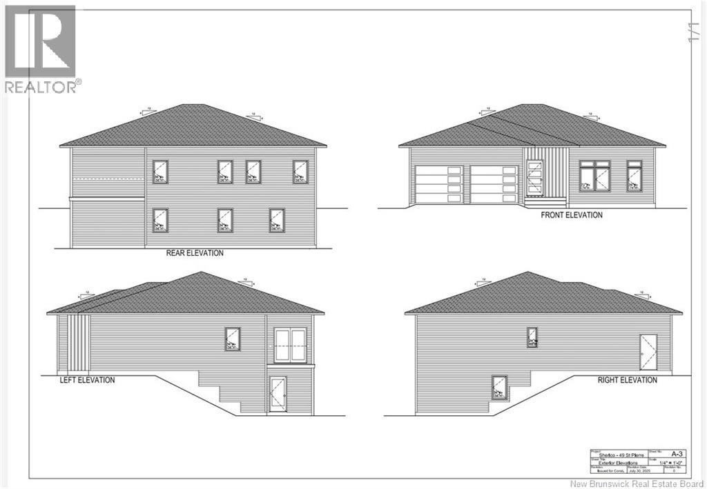
Looking for a new home in a sought-after South Side neighborhood? This beautifully designed plan will be a net-zero-ready home, direct access from the basement with convenient walkout for excellent Airbnb possibilities. Located just minutes from grocery stores, gyms, shopping centres, restaurants, and offers quick, convenient highway access. Thoughtfully planned with modern living in mind, this home will include a 7-Year Lux Home Warranty and can be customized with personal finishes during construction phase. The main level features a spacious entryway leading into an open-concept kitchen, dining, and family room, Perfect for everyday living. The primary bedroom is located on one side of the home and offers a large ensuite and walk-in closet, while two additional bedrooms and a full bathroom are situated on the opposite side for added privacy. The lower level unfinished, but offers room for another 2 bedrooms, large rec room; and will be roughed in for a third bathroom and a kitchenette providing excellent potential for extended family living or an Airbnb. With direct access to the backyard that situated onto parkland, offering both privacy and a natural setting. The attached double-car garage will be fully insulated and finished, completing this exceptional package. Vendor and Builder is a licensed REALTOR® in the province of NB, listing agent is related to the vendor. HST rebate will go back to the builder (id:34572)

Room Dimensions

Level Type Dimensions
Basement Utility Room 20'0'' x 12'0''
Basement Bath (# Pieces 1-6) 10'8'' x 8'1''
Basement Bedroom 11'8'' x 11'8''
Basement Bedroom 11'8'' x 11'8''
Basement Great Room 21'0'' x 23'0''
Main Level Laundry Room 6'5'' x 7'6''
Main Level 3pc Bathroom 3'5'' x 7'6''
Main Level Bath (# Pieces 1-6) 10'10'' x 6'3''
Main Level Bedroom 10'6'' x 12'0''
Main Level Bedroom 12'8'' x 10'8''
Main Level Other 8'5'' x 7'2''
Main Level Ensuite 12'3'' x 6'1''
Main Level Primary Bedroom 14'8'' x 12'2''
Main Level Foyer 8'6'' x 16'0''
Main Level Kitchen 14'6'' x 18'0''
Main Level Living Room 18'0'' x 12'0''


Loading, please wait...

Property Summary

  • Bedrooms 5
  • Bathrooms 4
  • Architectural Style Bungalow, 2 Level
  • Property Type Single Family
  • Square Footage 3060 sqft
  • Total Finished Area 3060 sqft
  • Built In N/A
  • Exterior Finish Vinyl
  • Heating Baseboard heaters, Heat Pump
  • Title N/A
  • Rental Equipment N/A
  • Basement Type Full
  • Parking Type Garage
  • Features N/A
  • Flooring Vinyl
  • Type House

Land Properties

  • Lot Size 594 sqft
  • Access Type Year-round access, Public Road
  • Water Municipal water
  • Features N/A
  • Sewer Municipal sewage system

Property Map