$574,500

229 Dickey Boulevard
Riverview, New Brunswick E1b0t6
MLS® Number: NB134092

  • 4
  • 3
  • 2739 sqft sq ft

TO BE BUILT FOR YOU! BEAUTIFUL DOWNSIZING BUNGALOW! Pre-Order NOW! CONSTRUCTION STARTING THIS SPRING on detached BUNGALOWS OVERLOOKING NATURE & PERFECT FOR DOWNSIZING!! INCLUDES FINISHED BASEMENT w/ 2 additional Bedrooms down. This beautiful BUNGALOW model is the latest addition to the well-located and growing community of Dobson Landing. On the doorstep of nature & amenities, these bungalow builds are planned for this master planned community in Riverview NB, mins from Downtown Moncton, & nestled close to walking trails. These fresh, 2+2 bedroom homes, designed for a redefined approach to downsizing living, are modern, durable, & quieter offering comfortable living with a stylish flair of suburban living & innovative energy efficient elements such as enhanced R34 insulation, triple glazed windows, 2 foam under basement floor; R60 attic insulation; roof net zero ready for solar panels; fully ducted heat pump w/ central air & much more. Its simply a better & smarter way of living. This 1410 sq ft home features practical one-level living in a beautiful open concept design from the stylish kitchen w/ functional Island, through to the open LR & DR. The Dining & Living area opening to a deck overlooking nature; primary bedroom has spacious walk-in & ensuite bath; 2nd bedroom; family 4 pc Bath; entry from the garage to a convenient mudroom & separate laundry. Basement is finished with a FR, 2 Bedrooms and 3rd full bath down. Choose your lot now for a spring build. (id:34572)

Room Dimensions

Level Type Dimensions
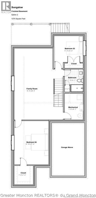
Basement Utility Room 7'7'' x 10'8''
Basement 4pc Bathroom 7'7'' x 9'1''
Basement Bedroom 13'1'' x 17'10''
Basement Bedroom 11'10'' x 10'10''
Basement Family Room 15'7'' x 28'10''
Main Level Laundry Room 5'11'' x 7'11''
Main Level Mud Room 5'11'' x 5'7''
Main Level 4pc Bathroom 5'6'' x 11'1''
Main Level Bedroom 14'4'' x 9'0''
Main Level Other 6'0'' x 8'5''
Main Level Bedroom 13'0'' x 13'11''
Main Level Kitchen 12'11'' x 14'1''
Main Level Dining Room 8'1'' x 15'8''
Main Level Living Room 12'1'' x 15'8''


Loading, please wait...

Property Summary

  • Bedrooms 4
  • Bathrooms 3
  • Architectural Style Bungalow
  • Property Type Single Family
  • Square Footage 2739 sqft
  • Total Finished Area 2739 sqft
  • Built In 2024
  • Exterior Finish Stone, Vinyl
  • Heating Electric Forced air, Heat Pump
  • Title N/A
  • Rental Equipment N/A
  • Basement Type N/A
  • Parking Type Garage
  • Features N/A
  • Flooring Laminate, Porcelain Tile, Hardwood
  • Type House

Land Properties

  • Lot Size 416 m2
  • Access Type Year-round access, Public Road
  • Water Municipal water
  • Features Landscaped
  • Sewer Municipal sewage system

Property Map