$149,000

109 Topeka Street
Saint John, New Brunswick E2j1j5
MLS® Number: NB136644

  • 2
  • 1
  • 1250 sqft sq ft

This property presents a fantastic investment opportunity for those looking to add value and customize a home to their vision. Situated in a desirable location, this 2-bedroom, 1-bathroom residence offers strong potential with some TLC. The layout features a unique setup with a vanity in the primary bedroom, adding convenience and flexibility. The home sits on a generously sized lot comprised of four separate PIDs, providing ample space and future development possibilities. Whether youre an investor, renovator, or first-time buyer looking to build equity, this property offers endless potential. With its great location and sizable land parcel, its an excellent chance to create something special. Dont miss this opportunity to transform this property into a valuable asset. (id:34572)

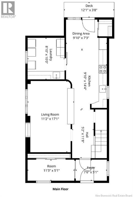
Room Dimensions

Level Type Dimensions
Second Level Bath (# Pieces 1-6) 8'10'' x 7'5''
Second Level Bedroom 15'11'' x 9'9''
Second Level Primary Bedroom 13'4'' x 18'6''
Main Level Laundry Room 8'10'' x 10'0''
Main Level Living Room 11'2'' x 17'1''


Loading, please wait...

Property Summary

  • Bedrooms 2
  • Bathrooms 1
  • Architectural Style 2 Level
  • Property Type Single Family
  • Square Footage 1250 sqft
  • Total Finished Area 1250 sqft
  • Built In N/A
  • Exterior Finish Wood
  • Heating Electric
  • Title N/A
  • Rental Equipment Water Heater
  • Basement Type N/A
  • Parking Type Garage
  • Features N/A
  • Flooring Carpeted, Ceramic, Laminate, Hardwood
  • Type House

Land Properties

  • Lot Size 232 m2
  • Access Type Year-round access, Public Road
  • Water Municipal water
  • Features N/A
  • Sewer Municipal sewage system

Property Map