$529,900

10 Cedar Street
Miramichi, New Brunswick E1n3m8
MLS® Number: NB124140

  • 3207 sqft sq ft

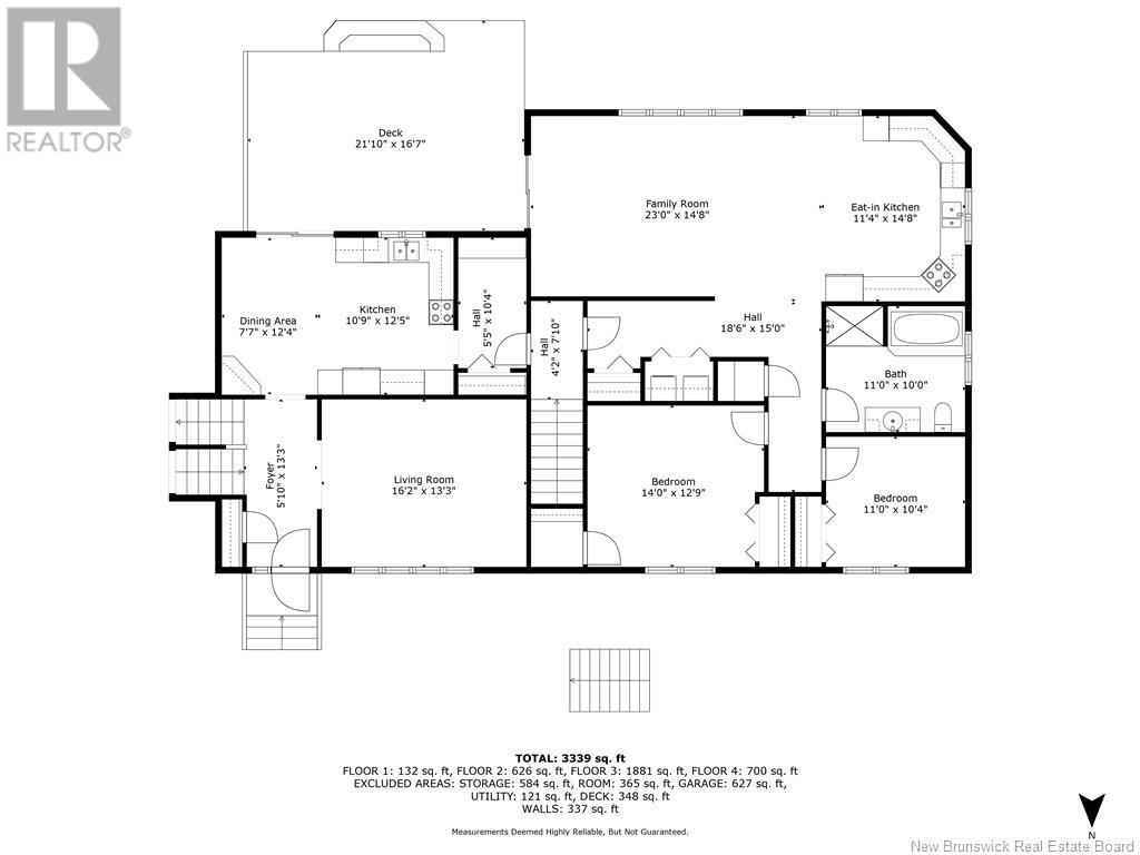
In-Law Suite / Income property. 10 Cedar is located in a desirable neighborhood! This unique 4-level split home includes a convenient in-law suite. Located close to all amenities, the main house offers an eat-in kitchen and dining area with patio doors leading to a private back deck, living room. The upper level features 3 bedrooms and a full bath. The lower level boasts a spacious family room with pellet stove, bedroom, full bath, and laundry. Bonus - The in-law suite is equipped with an open concept kitchen, dining, and living area, along with a full bath, 2 bedrooms, and laundry facilities. For added convenience, there is a 2-car garage with ample storage space and a large double paved driveway. The property is beautifully landscaped with perennials and shrubs. Both the main house and in-law suite have their own ducted heat pump systems and separate power meters. Don't miss out on this fantastic opportunity - call today to schedule a viewing! (id:34572)


Loading, please wait...

Property Summary

  • Bedrooms N/A
  • Bathrooms N/A
  • Architectural Style N/A
  • Property Type Multi-family
  • Square Footage 3207 sqft
  • Total Finished Area 3207 sqft
  • Built In 1988
  • Exterior Finish Vinyl
  • Heating Heat Pump
  • Title N/A
  • Rental Equipment N/A
  • Basement Type N/A
  • Parking Type Garage
  • Features N/A
  • Flooring Ceramic, Laminate, Vinyl, Wood
  • Type Duplex

Land Properties

  • Lot Size 1553 m2
  • Access Type Year-round access, Public Road
  • Water Well
  • Features Landscaped
  • Sewer Municipal sewage system

Property Map