$4,990,000

638-640 Manawagonish Road
Saint John, New Brunswick E2m3w5
MLS® Number: NB131528

  • 27646 sqft sq ft

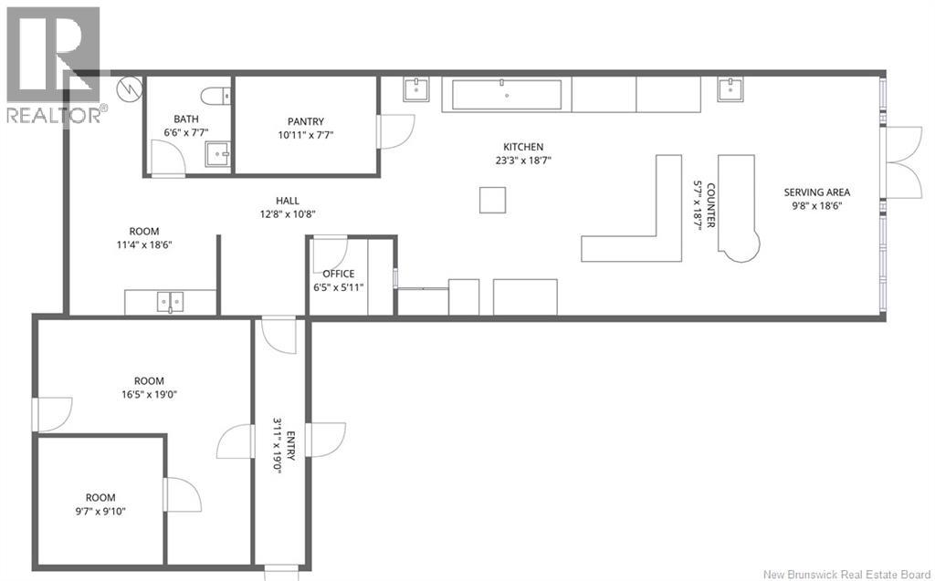
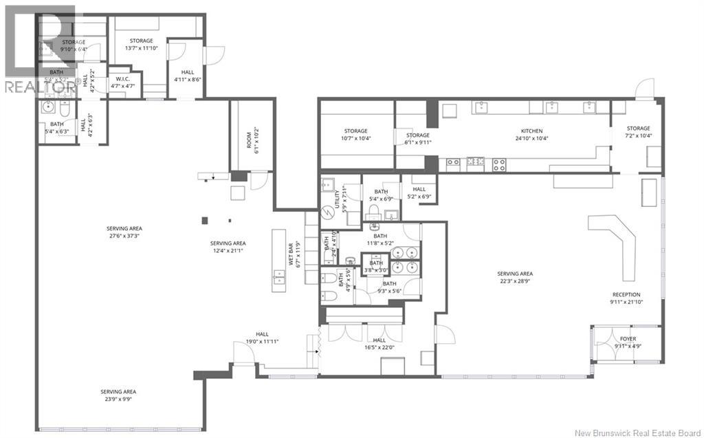
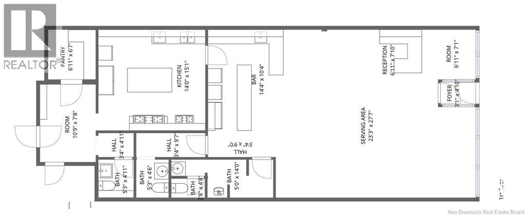
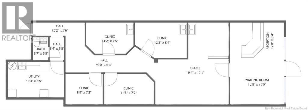
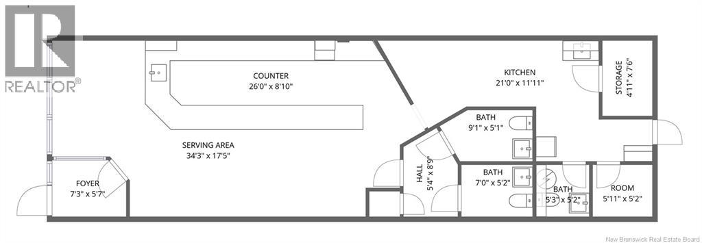
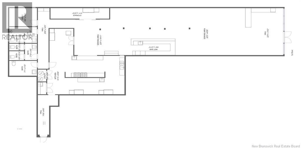
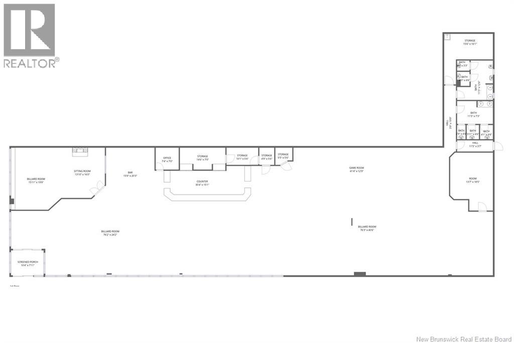
Exceptional opportunity to acquire a well-established, fully leased commercial plaza totaling just over 27,000 square feet. The property is home to 15 successful businesses, some of which have been operating at this location for over 30 years, reflecting long-term tenant stability and consistent performance. Ideally situated at a busy, high-visibility intersection on the rapidly growing west side, this plaza benefits from strong traffic counts, excellent exposure, and continued development in the surrounding area. Set on a generous 2.3-acre lot, the property offers ample on-site parking with 140+ spaces and three points of access from two major roads, allowing for smooth flow and easy access for patrons and tenants.  The building also features approximately 4800 square feet of undeveloped basement space, offering additional income potential with exterior access. (id:34572)


Loading, please wait...

Property Summary

  • Bedrooms N/A
  • Bathrooms N/A
  • Architectural Style N/A
  • Property Type Other
  • Square Footage 27646 sqft
  • Total Finished Area 27646 sqft
  • Built In 1973
  • Exterior Finish Brick, Metal
  • Heating Electric, Natural gas Heat Pump
  • Title N/A
  • Rental Equipment None
  • Basement Type N/A
  • Parking Type Garage
  • Features N/A
  • Flooring N/A
  • Type N/A

Land Properties

  • Lot Size 9242 m2
  • Access Type Year-round access, Public Road
  • Water N/A
  • Features N/A
  • Sewer N/A

Property Map